Hà Tĩnh có 6 dự án khởi công, khởi động chào mừng Đại hội XIV của Đảng
Khu kinh tế Vũng Áng tiếp tục là “thỏi nam châm” thu hút các dự án.
Vào ngày 19/12 tới đây, cả nước sẽ đồng loạt khởi công, khánh thành trên 200 công trình chào mừng Đại hội đại biểu toàn quốc lần thứ XIV của Đảng. Thực hiện chỉ đạo của Chính phủ, UBND tỉnh đã chỉ đạo các sở, ngành đôn đốc, tổng hợp các dự án do các đơn vị đăng ký; lựa chọn kỹ lưỡng, đảm bảo các điều kiện pháp lý, phù hợp nhằm chào đón sự kiện trọng đại của đất nước và có ý nghĩa quan trọng đối với phát triển kinh tế - xã hội của tỉnh.
Các dự án được tỉnh đăng ký vào danh mục các dự án, công trình trên toàn quốc đồng loạt khánh thành, khởi công chào mừng Đại hội XIV của Đảng gồm 6 dự án, trong đó có 2 dự án tổ chức khởi công, 4 dự án làm lễ khởi động. Tổng nguồn vốn của các dự án đạt hơn 128.552 tỷ đồng, trong đó 1 dự án sử dụng nguồn vốn ngân sách tỉnh, các dự án còn lại từ nguồn vốn nhà đầu tư trong nước.
|
|
|
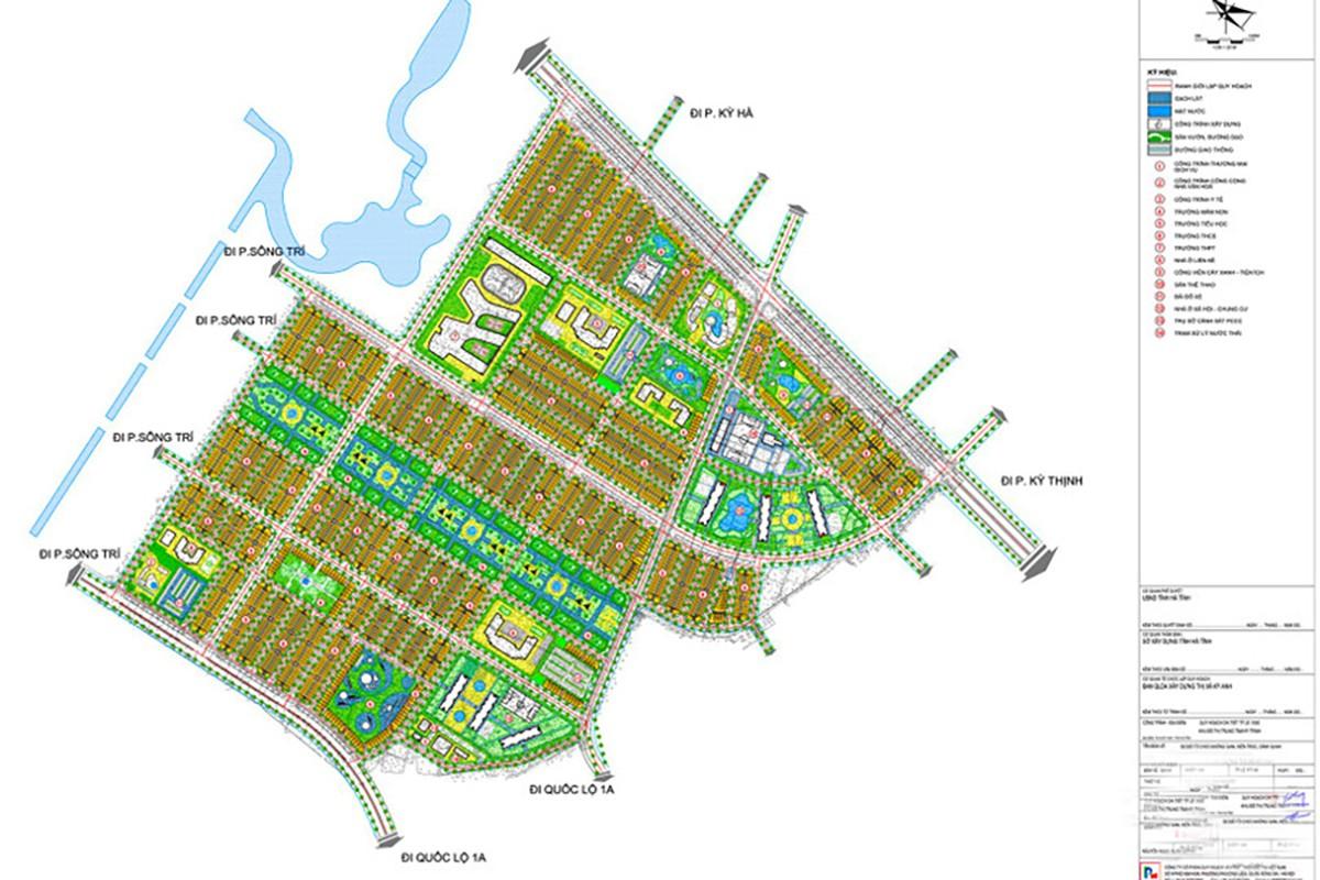
Tập đoàn Vingroup đăng ký tổ chức lễ khởi động 4 dự án tại Khu công nghiệp Vinhomes Vũng Áng. Trong ảnh: Phối cảnh và Quy hoạch chi tiết dự án Khu đô thị mới Kỳ Trinh (phường Sông Trí).
Khu kinh tế Vũng Áng tiếp tục là “thỏi nam châm” thu hút quan tâm của nhà đầu tư. Trong sự kiện trọng đại này, Tập đoàn Vingroup đăng ký tổ chức lễ khởi động 4 dự án tại Khu công nghiệp Vinhomes Vũng Áng gồm: Nhà máy sản xuất thép Vinmetal Hà Tĩnh, tổng mức đầu tư gần 80.000 tỷ đồng, quy mô hơn 461 ha; Khu đô thị mới Kỳ Trinh (phường Sông Trí), tổng mức đầu tư 8.000 tỷ đồng, quy mô sử dụng đất hơn 84 ha; Nhà máy Điện gió Kỳ Anh có công suất 400 MW, cung cấp điện năng 1.053,3 GWh/năm, tổng vốn đầu tư 17.051 tỷ đồng; Nhà máy Điện gió Eco Wind Kỳ Anh, tổng mức đầu tư 22.647 tỷ đồng, công suất gần 500 MW, sản lượng điện dự kiến hơn 1.322 GWh/năm.
Các dự án đang được hoàn thiện hồ sơ, thủ tục pháp lý liên quan. Ban Quản lý Khu kinh tế (KKT) tỉnh đang phối hợp chặt chẽ với các sở, ngành rà soát kỹ thủ tục, hướng dẫn từng bước nhằm hỗ trợ tối đa chủ đầu tư hoàn tất thủ tục pháp lý, đảm bảo điều kiện khởi động dự án theo đúng quy định. Cùng đó, triển khai khẩn trương công tác GPMB, rà soát quỹ đất nhằm tạo mặt bằng sạch, sẵn sàng cho ngày trọng đại 19/12 tới.
|
|
|
Ban Quản lý Khu kinh tế tỉnh đang tập trung hỗ trợ tối đa chủ đầu tư hoàn tất thủ tục, hồ sơ nhằm đảm bảo khởi động dự án theo đúng quy định.
Ông Phạm Văn Tình - Phó Trưởng BQL Khu kinh tế tỉnh cho biết: “4 dự án lớn của Tập đoàn Vingroup đăng ký thực hiện tại KKT Vũng Áng dịp này đều là những công trình quy mô, đóng vai trò rất lớn trong việc tạo động lực để phát triển khu kinh tế cũng như Hà Tĩnh trong giai đoạn mới, định hướng trở thành trung tâm công nghiệp - năng lượng chiến lược của cả nước. BQL đang tập trung hỗ trợ nhà đầu tư hoàn thiện các thủ tục pháp lý, phối hợp chặt chẽ với chính quyền địa phương trong công tác giải phóng mặt bằng và các phần việc liên quan. Đồng thời, xây dựng kế hoạch, bám sát công tác chuẩn bị tổ chức lễ khởi động của các dự án, báo cáo, tham mưu UBND tỉnh kịp thời theo tiến độ”.
Cùng với 4 dự án tại KKT Vũng Áng, trong dịp này, Hà Tĩnh có 2 dự án đăng ký khởi công. Đó là, dự án đầu tư xây dựng Bảo tàng Hà Tĩnh, công trình văn hoá trọng điểm của tỉnh giai đoạn 2025 – 2030 với tổng mức đầu tư 305 tỷ đồng, sử dụng nguồn vốn ngân sách tỉnh. Diện tích quy hoạch dự án khoảng 2,28 ha, gồm khối nhà chính 4 tầng và các hạng mục khác trên tổng diện tích 12.990 m 2 .
Phối cảnh Khu đô thị mới Xuân Thành - giai đoạn 1 do Công ty CP đầu tư Phát triển Harumi đầu tư.
Dự án Khu đô thị mới Xuân Thành, huyện Nghi Xuân - giai đoạn 1 (nay là xã Tiên Điền) có tổng mức đầu tư 549,5 tỷ đồng, quy mô sử dụng đất 45,54 ha do Công ty CP đầu tư Phát triển Harumi đầu tư.
Khu đô thị được xác định là một trong những hạt nhân phát triển đô thị phía Bắc của tỉnh, góp phần mở rộng không gian, kết nối chuỗi dịch vụ, du lịch ven sông Lam, thúc đẩy phát triển kinh tế - xã hội toàn khu vực. Đến thời điểm này, dự án đã hoàn thành GPMB phân kỳ giai đoạn 1, hoàn thành thiết kế, thẩm định và các thủ tục pháp lý theo quy định.
Khu đô thị được xác định là một trong những hạt nhân phát triển đô thị phía Bắc của tỉnh, góp phần mở rộng không gian, kết nối chuỗi dịch vụ, du lịch, thúc đẩy phát triển kinh tế - xã hội toàn khu vực.
Ông Đậu Chí Thanh - Phó Giám đốc Công ty CP đầu tư Phát triển Harumi cho biết: “Đến thời điểm này, chúng tôi đã hoàn thành các thủ tục đảm bảo điều kiện tổ chức lễ khởi công vào ngày 19/12. Trong tuần tới, công ty tập trung huy động máy móc, thiết bị san ủi mặt bằng tại vị trí tổ chức lễ khởi công; đồng thời, rà soát lại công tác chuẩn bị khánh tiết như nhà rạp, âm thanh, ánh sáng, đảm bảo tổ chức buổi lễ chu đáo, trang trọng, an toàn, tiết kiệm và đúng kế hoạch”.
Với tinh thần quyết liệt và khẩn trương, các sở, ngành, địa phương đang tiếp tục bám sát chỉ đạo của UBND tỉnh, tập trung cao độ công tác chuẩn bị lễ khởi động, khởi công các dự án. Mọi phần việc được rà soát kỹ lưỡng, triển khai đúng quy định và đúng tiến độ để hòa cùng nhịp đập chung của cả nước trong những ngày hướng về Đại hội XIV của Đảng; đồng thời, tạo động lực bứt phá cho giai đoạn phát triển mới của tỉnh.
Nguồn: baohatinh.vn
(https://baohatinh.vn/ha-tinh-co-6-du-an-khoi-cong-khoi-dong-chao-mung-dai-hoi-xiv-cua-dang-post300736.html?)



